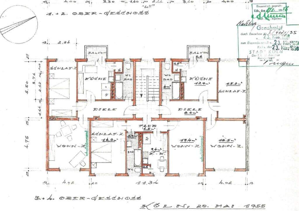
Diese attraktive, vermietete Wohnung befindet sich in einem gepflegten Mehrfamilienhaus, das im Jahr 1955 erbaut wurde. Das Mehrfamilienhaus erstreckt sich über insgesamt vier Geschosse. Mit einer großzügigen Wohnfläche von 54m² ist die Wohnung ideal für Paare, die Wert auf Raum und Komfort legen.
Die Wohnung verfügt über drei lichtdurchflutete Zimmer, die vielseitig genutzt werden können. Der offene Wohnbereich lädt zu geselligen Abenden ein und bietet ausreichend Platz für eine gemütliche Couchlandschaft sowie einen Essbereich. Die beiden Schlafzimmer sind geräumig und bieten genügend Stauraum für persönliche Gegenstände. Die großen Fenster sorgen für eine angenehme Belichtung und schaffen eine freundliche Atmosphäre.
Die Lage der Wohnung ist ein weiterer Pluspunkt. Sie befindet sich direkt gegenüber von der Bahnhaltestelle Eifelplatz, das eine grandiose Anbindung an den öffentlichen Nahverkehr bietet. Einkaufsmöglichkeiten, Schulen und Freizeitangebote sind in der näheren Umgebung vorhanden, was die Wohnqualität zusätzlich erhöht.
Die Wohnung ist aktuell vermietet, was sie auch für Kapitalanleger interessant macht. Der Erhaltungszustand der Immobilie ist gut, und regelmäßige Instandhaltungsmaßnahmen wurden durchgeführt, um den Wert der Wohnung langfristig zu sichern. Insgesamt stellt diese Wohnung eine hervorragende Gelegenheit dar, in eine solide Immobilie zu investieren, die sowohl Wohnkomfort, als auch eine attraktive Rendite bietet.
-> In der Immobilie stehen aktuell noch 11 Wohnungen zum Verkauf.
Es besteht die Möglichkeit, diese im Rahmen eines Paketverkaufs zu einem angepassten Kaufpreis zu erwerben.
Auch der Kauf einer gesamten vermieteten Etage mit 3 oder mehr Einheiten wäre eine Option.
Die Eifelstraße 70-72 befindet sich in Köln-Neustadt-Süd, einem lebendigen Stadtteil, der durch seine zentrale Lage und attraktive Wohn- und Lebensqualität besticht. Die Umgebung ist geprägt von einer Mischung aus Wohn- und Geschäftshäusern, die eine Vielzahl von Dienstleistungen, Gastronomie und Einzelhandel bieten. Die Infrastruktur in diesem Stadtteil ist gut ausgebaut. In unmittelbarer Nähe finden sich Supermärkte, Fachgeschäfte und diverse Restaurants, die eine breite Palette an kulinarischen Angeboten bereitstellen.
Die Kaufkraft in Köln-Neustadt-Süd ist relativ hoch, was sich in der Nachfrage nach Immobilien und der Preisentwicklung in diesem Bereich widerspiegelt. Die Bewohner sind überwiegend junge Familien, Berufstätige und Studierende, was zu einer dynamischen und vielfältigen Einwohnerstruktur führt. Diese Mischung fördert ein lebendiges Nachbarschaftsleben und kulturelle Aktivitäten.
Die Parkplatzsituation kann in städtischen Gebieten wie Neustadt-Süd herausfordernd sein. Anwohnerparkplätze sind vorhanden, jedoch sind diese oft begrenzt. Es gibt auch öffentliche Parkmöglichkeiten, die jedoch in Stoßzeiten schnell ausgelastet sein können. Daher ist es empfehlenswert, alternative Verkehrsmittel zu nutzen.
Die Verkehrsanbindung ist hervorragend. Die Eifelstraße ist gut an das öffentliche Verkehrsnetz angebunden. Mehrere Buslinien, darunter die Linien 142 und 150, bedienen die Haltestellen in der Nähe und bieten schnelle Verbindungen zu wichtigen Punkten in der Stadt. Darüber hinaus sind auch Straßenbahnlinien in der Nähe, die eine schnelle Anbindung an das Stadtzentrum und andere Stadtteile gewährleisten. Die Nähe zur Autobahn A4 ermöglicht zudem eine unkomplizierte Anreise mit dem Auto.
Insgesamt bietet die Eifelstraße 70-72 in Köln-Neustadt-Süd eine attraktive Lage mit einer guten Mischung aus urbanem Leben, Infrastruktur und Verkehrsanbindung, die sowohl für Anwohner als auch für Gewerbetreibende von Interesse ist.
Allgemeine Instandhaltungsmaßnahmen in den letzten 7 Jahren:
2018:
– Balkonabdichtung überprüft & erneuert
– Anstrich der Balkone
– Putz der Balkone ausgebessert
2020/2021:
– Anstrich der Fassade in EG Höhe, Durchfahrt, Mauer Hof und Garagenfronten
– Parkplatzflächen neu markiert
– Beleuchtung Einfahrt und Hof erneuert
2023:
– Baumfällung & Neupflanzung im Hof
2025:
– Sanierung der Elektrik: vom Zählerschrank im Keller bis zu den Unterverteilungen der Wohnungen
– Neue Wohnungseingangstüren
– Renovierung Treppenhaus
Wir sind bemüht, alle Angaben vollständig und richtig zu übermitteln. Da wir uns jedoch teilweise bei Fakten und Daten auf die Information der Eigentümer stützen müssen, übernehmen wir hierfür keine Gewähr. Das Exposé dient als Vorinformation und die Prüfung der Angaben/Objektunterlagen obliegt dem Mietinteressenten.
Wir haften nicht für Irrtümer oder Schriftfehler.
Bitte führen Sie Innenbesichtigungen nur nach vorheriger Terminabsprache mit einem Mitarbeiter der Firma Immo-Connect GmbH durch.
Bei grundsätzlichem Interesse an unserer heutigen Offerte überlassen wir Ihnen auf Anfrage gerne weitere objektbezogene Unterlagen und Informationen.
210.000€
Hinzugefügt: Januar 23, 2024
1.299.000€
Hinzugefügt: April 17, 2026
439.000€
Hinzugefügt: Februar 25, 2025
Owning a home is a keystone of wealth… both financial affluence and emotional security.
Suze Orman