Diese außergewöhnliche Gewerbeeinheit befindet sich auf dem historischen Anwesen der Niederpleiser Mühle und verbindet eindrucksvoll den Charme traditioneller Bausubstanz mit zeitgemäßem Arbeiten.
Die loftartige Einheit erstreckt sich über zwei Etagen und bietet insgesamt ca. 340 m² Gesamtfläche, inklusive eines praktischen Abstellraums.
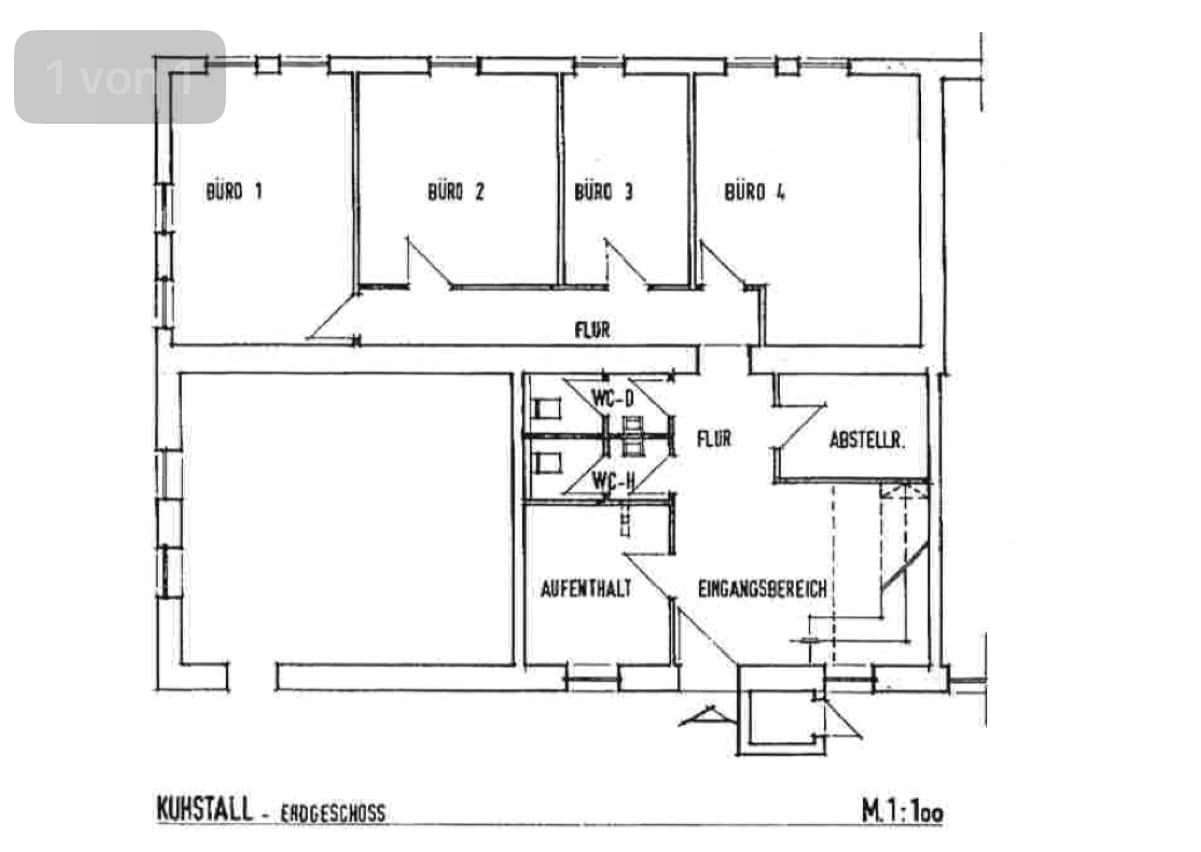
Im Erdgeschoss stehen vier helle Büroräume zur Verfügung, die sich ideal für Einzel- oder Teamarbeitsplätze eignen.
Das Obergeschoss ergänzt das Raumangebot um sieben weitere, helle Büros, wodurch eine flexible Nutzung für unterschiedlichste Unternehmensstrukturen möglich ist.
Zwei separate WC-Einheiten sorgen für zusätzlichen Komfort im Arbeitsalltag.
Im Jahr 2022 wurde die Einheit umfassend saniert und präsentiert sich heute in einem modernen, hochwertigen Zustand, ohne den historischen Charakter des Ensembles zu verlieren.
Großzügige Raumhöhen und der offene Loftcharakter schaffen eine inspirierende Arbeitsatmosphäre.
Ausreichend Parkflächen direkt auf dem Anwesen runden das Angebot ab und gewährleisten eine bequeme Erreichbarkeit für Mitarbeiter und Besucher.
Diese Gewerbeeinheit ist ideal für Unternehmen, die helle Räume mit besonderem Flair in historischer Umgebung suchen.
Der Gewerbestandort in Sankt Augustin überzeugt durch eine strategisch günstige Lage im wirtschaftsstarken Rhein-Sieg-Kreis.
Der Stadtteil Niederpleis bietet eine ausgewogene Mischung aus gewerblicher Nutzung, Wohnbebauung und Grünflächen und ist damit ein attraktiver Standort für Unternehmen unterschiedlichster Branchen.
Die Anbindung an das überregionale Verkehrsnetz ist hervorragend:
Über die B56 und B484 sowie die nahegelegenen Autobahnen A59 und A3 sind die Städte Bonn, Köln, Siegburg sowie der Flughafen Köln/Bonn schnell und zuverlässig erreichbar.
Der ICE-Bahnhof Siegburg/Bonn ermöglicht zudem eine optimale nationale und internationale Anbindung für Geschäftsreisen.
Der Standort ist sowohl mit dem PKW, als auch mit dem öffentlichen Nahverkehr gut erreichbar.
Ausreichende Parkmöglichkeiten direkt am Objekt stellen einen klaren Standortvorteil für Mitarbeiter, Kunden und Geschäftspartner dar.
Das historische Anwesen verleiht dem Standort einen repräsentativen Charakter und hebt sich deutlich von klassischen Gewerbegebieten ab. Gleichzeitig profitieren Unternehmen von einer ruhigen Arbeitsumgebung, die konzentriertes Arbeiten ermöglicht, ohne auf die Nähe zu urbanen Zentren verzichten zu müssen.
Insgesamt bietet die Lage ideale Voraussetzungen für Büro-, Dienstleistungs-, Agentur- oder beratungsorientierte Unternehmen, die Wert auf gute Erreichbarkeit, ein professionelles Umfeld und eine besondere Adresse legen.
o zeitlose und hochwertige Ausstattung
o Fußbodenheizung
o Vinyl-Boden in Optik Mooreiche
o zum Teil offene, historische Deckenbalken im DG
o 2 WC’S
o Küche mit Einbauküche
o Empfangsbereich
o Ölheizung
o Doppelt verglaste Kunststofffenster
o Klimaanlage in mehreren Räumen
o Optional um 150m² erweiterbar
Wir sind bemüht, alle Angaben vollständig und richtig zu übermitteln. Da wir uns jedoch teilweise bei Fakten und Daten auf die Information der Eigentümer stützen müssen, übernehmen wir hierfür keine Gewähr. Das Exposé dient als Vorinformation und die Prüfung der Angaben/Objektunterlagen obliegt dem Mietinteressenten.
Wir haften nicht für Irrtümer oder Schriftfehler. Als Rechtsgrundlage gilt allein der abgeschlossene Mietvertrag. Dieser gilt bei Vertragsabschluss als vereinbart.
Bitte führen Sie Innenbesichtigungen nur nach vorheriger Terminabsprache mit einem Mitarbeiter der Firma Immo-Connect GmbH oder Ihrem Immo-Connect Partner durch.
Bei grundsätzlichem Interesse an unserer heutigen Offerte überlassen wir Ihnen auf Anfrage gerne weitere objektbezogene Unterlagen und Informationen.
Der guten Ordnung halber machen wir Sie noch darauf aufmerksam, dass bei Zustandekommen des Mietvertrages eine Maklercourtage in Höhe von 3,57 Monatskaltmieten, bei einer Vertragslaufzeit von unter 5 Jahren, 4,76 Monatskaltmieten bei einer Vertragslaufzeit ab 5 Jahren fällig wird, zahlbar durch den Mieter. Weitergabe des Angebots an Dritte führt zu Schadensersatzansprüchen in Höhe der vollen entgangenen Provision.
Bestimmt haben Sie Verständnis dafür, dass der Eigentümer gerne von uns wissen möchte, wem wir die Informationen über seine Immobilie überlassen. Aus diesem Grund können von uns nur vollständig ausgefüllte Kontaktformulare beantwortet werden.
Sie möchten Ihre Wohnung oder Ihr Haus verkaufen oder vermieten? Oder Sie benötigen Hilfe bei der schnellen Weitervermietung Ihrer alten Wohnung? Wir machen das für Sie, unkompliziert und marktgerecht. Gerne beraten wir Sie fachgerecht und unabhängig. Sprechen Sie uns an.
1.950€ / pro Monat
Hinzugefügt: Januar 9, 2026
2.295.000€
Hinzugefügt: Januar 22, 2025
220.000€
Hinzugefügt: Januar 22, 2025
Owning a home is a keystone of wealth… both financial affluence and emotional security.
Suze Orman