Zur Vermietung steht eine moderne, neuwertige Gewerbehalle in top Lage in Königswinter-Oberpleis. Die Halle überzeugt durch eine großzügige Ausstattung und vielfältige Nutzungsmöglichkeiten. Ideal für Lagerung, Logistik oder sonstige gewerbliche Zwecke.
Objektmerkmale:
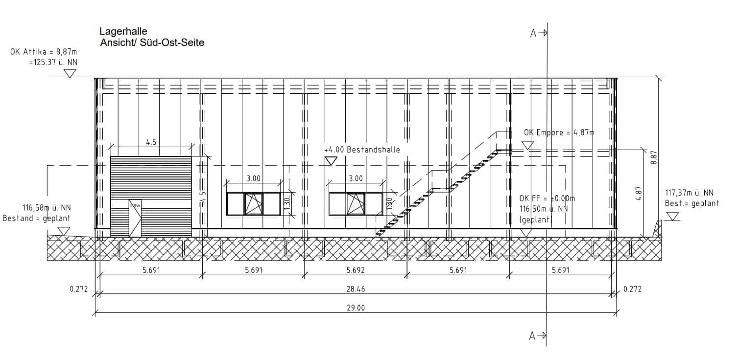
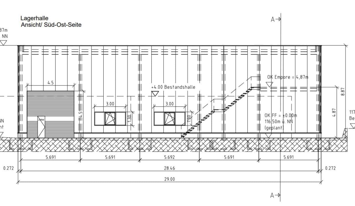
2-geschossig mit einer Deckenhöhe von 9 m, bietet ausreichend Platz für hohe Regalsysteme oder Maschinen.
Sektionaltor (4 x 4 m) für einfachen Zugang und Be- bzw. Entladen von Fahrzeugen.
Starkstromanschluss vorhanden optimal für den Betrieb von Maschinen und schweren Geräten.
Die Halle ist komplett mit LED-Beleuchtung ausgestattet, was für eine energieeffiziente Beleuchtung sorgt.
Lagerung und Aufstellen von Hochlastregalen sind problemlos möglich, sodass eine vielseitige Nutzung garantiert ist.
PKW-Befahrbarkeit:
Die Halle ist mit dem PKW problemlos befahrbar, Be- und Entladen im trockenen Hallenbereich möglich keine wetterbedingten Einschränkungen.
Schnelle Anbindung an die Autobahn, was eine ausgezeichnete Erreichbarkeit für Transport und Logistik gewährleistet.
Das Grundstück ist komplett eingefriedet, sodass ein hoher Sicherheitsstandard gewährleistet ist.
Die Halle eignet sich perfekt für Unternehmen, die viel Platz für Lagerung, Produktion oder Logistik benötigen und eine gute Erreichbarkeit wünschen.
Bei Interesse oder für weitere Details kontaktieren Sie uns bitte. Besichtigungen sind nach vorheriger Terminabsprache möglich.
Königswinter-Oberpleis, gelegen im Siebengebirge, ist infrastrukturell hervorragend ausgeprägt. Einkaufsmöglichkeiten des täglichen Bedarfs sind in direkter Nähe vorhanden, Banken und Apotheken ebenso vertreten wie Ärztehäuser, Schulen und Kindergarten. Die Autobahnanschlussstelle Siebengebirge der Autobahn A3 ist in wenigen Minuten mit dem Auto zu erreichen. Nach Bonn und Siegburg gelangt man in etwa 20 Autominuten. Die Immobilie ist äußerst werbewirksam an der L143 gelegen.
Betonboden
Deckenhöhe 9m
2-geschossige Bauweise
Viel Tageslichteinfall
Starkstrom vorhanden
LED-Beleuchtung
Elektrisches Sektionaltor der Marke Hörmann, 4m x 4m
Die gesamte Elektrik ist neu und mit separaten Ablesegeräten ausgestattet
Das gesamte Areal ist eingefriedet und über 2 Zugangstore befahrbar
Die Außenanlagen sind überwiegend gepflastert und teilweise geschottert
Langfristige Mietverträge werden bevorzugt
Wir sind bemüht, alle Angaben vollständig und richtig zu übermitteln. Da wir uns jedoch teilweise bei Fakten und Daten auf die Information der Eigentümer stützen müssen, übernehmen wir hierfür keine Gewähr. Das Exposé dient als Vorinformation und die Prüfung der Angaben/Objektunterlagen obliegt dem Mietinteressenten.
Wir haften nicht für Irrtümer oder Schriftfehler. Als Rechtsgrundlage gilt allein der abgeschlossene Mietvertrag. Dieser gilt bei Vertragsabschluss als vereinbart.
Bitte führen Sie Innenbesichtigungen nur nach vorheriger Terminabsprache mit einem Mitarbeiter der Firma IMMO-Connect GmbH oder Ihrem Immo-Connect Partner durch.
Bei grundsätzlichem Interesse an unserer heutigen Offerte überlassen wir Ihnen auf Anfrage gerne weitere objektbezogene Unterlagen und Informationen.
Der guten Ordnung halber machen wir Sie noch darauf aufmerksam, dass bei Zustandekommen des Mietvertrages eine Maklercourtage in Höhe von 3,57 Monatskaltmieten, bei einer Vertragslaufzeit von unter 5 Jahren, 4,76 Monatskaltmieten bei einer Vertragslaufzeit ab 5 Jahren fällig wird, zahlbar durch den Mieter.
Bestimmt haben Sie Verständnis dafür, dass der Eigentümer gerne von uns wissen möchte, wem wir die Informationen über seine Immobilie überlassen. Aus diesem Grund können von uns nur vollständig ausgefüllte Kontaktformulare beantwortet werden.
Sie möchten Ihre Wohnung oder Ihr Haus verkaufen oder vermieten? Oder Sie benötigen Hilfe bei der schnellen Weitervermietung Ihrer alten Wohnung? Wir machen das für Sie, unkompliziert und marktgerecht. Gerne beraten wir Sie fachgerecht und unabhängig. Sprechen Sie uns an.
129.000€
Hinzugefügt: Januar 22, 2025
149.000€
Hinzugefügt: Januar 22, 2025
199.000€
Hinzugefügt: November 22, 2025
Owning a home is a keystone of wealth… both financial affluence and emotional security.
Suze Orman